LOADING

121 Feairs Drive Southgate, Ontario N0G 1N0

3 Bedroom 2 Bathroom 1500 - 2000 sqft
Bungalow Fireplace Central Air Conditioning Forced Air

$895,000

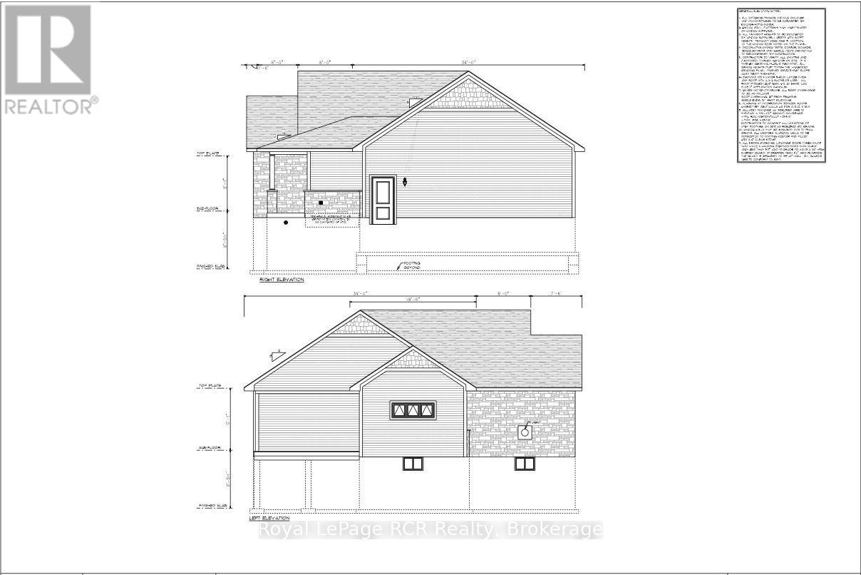
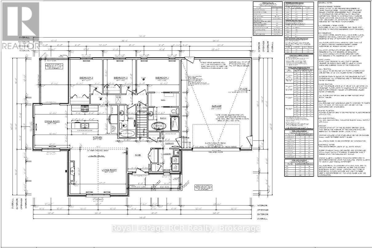
This Stunning pre-construction bungalow offers 1,818sqft of thoughtfully designed one-level living on nearly a one-acre country lot, complete with an attached double garage, open-concept floor plan, and a bright, spacious design throughout. The home features a durable exterior of aluminum siding and brick, a large rear deck ideal for outdoor living, and interiors highlighted by quartz countertops, premium cabinetry, and beautiful finishes. Inside, you'll find three bedrooms and two full bathrooms, including a primary suite with walk-in closet, soaker tub, tiled shower, and high-end fixtures, plus the convenience of main-floor laundry. The basement will be left unfinished but framed and insulated, making it ready for future conversion into living space. The nearly one-acre lot offers endless possibilities for gardens, outdoor living, or future structures, with the builder also offering to construct matching accessory buildings such as a shed or shop. Built by RCC Custom Homes, a trusted local Mount Forest builder, every detail is completed with care, integrity, and craftsmanship using trades and suppliers from Wellington and Grey Counties, with materials sourced from established community businesses. Known for flexibility, this builder gives buyers the ability to customize finishes, adjust layouts, finish the basement, or personalize details to suit their lifestyle. The property backs onto open farmland, ensuring privacy with no neighbours or future buildings to the rear, sits on a cul-de-sac street with no thru traffic, off a well-maintained country road with reliable snow plowing, offering quick access, less than 10 minutes to Mount Forest and 20 minutes to Shelburne. A private drilled well and oversized septic system add to the homes self-sufficiency. With Tarion New Home Warranty protection, Spring 2026 occupancy, and a home built with the pride of a local builder, this is a rare opportunity to enjoy modern comfort, rural charm, and long-term peace of mind. (id:51004)

Property Details

MLS® Number X12677350
Property Type Single Family
Community Name Southgate
Parking Space Total 7

Building

Bathroom Total 2
Bedrooms Above Ground 3
Bedrooms Total 3
Age New Building
Appliances Garage Door Opener Remote(s), Garage Door Opener, Hood Fan
Architectural Style Bungalow
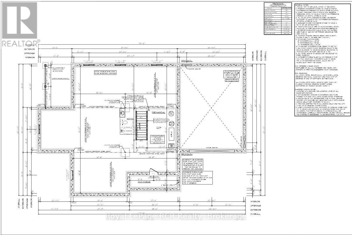
Basement Development Unfinished
Basement Type Full (unfinished)
Construction Style Attachment Detached
Cooling Type Central Air Conditioning
Exterior Finish Aluminum Siding, Stone
Fireplace Present Yes
Foundation Type Poured Concrete
Heating Fuel Propane
Heating Type Forced Air
Stories Total 1
Size Interior 1500 - 2000 Sqft
Type House

Parking

Attached Garage
Garage

Land

Acreage No
Sewer Septic System
Size Depth 57.763 M
Size Frontage 63.453 M
Size Irregular 63.5 X 57.8 M
Size Total Text 63.5 X 57.8 M|1/2 - 1.99 Acres
Zoning Description R5

Rooms

Level Type Dimensions
Main Level Foyer 2.43 m x 2.36 m
Main Level Mud Room 1.82 m x 1.21 m
Main Level Laundry Room 2.43 m x 2.13 m
Main Level Living Room 5.79 m x 4.57 m
Main Level Dining Room 4.42 m x 3.81 m
Main Level Kitchen 4.72 m x 4.42 m
Main Level Primary Bedroom 4.42 m x 3.35 m
Main Level Bedroom 2 3.32 m x 2.75 m
Main Level Bedroom 3 3.5 m x 3.32 m
Main Level Bathroom 3.2 m x 2.43 m
Main Level Bathroom 3.04 m x 1.7 m

https://www.realtor.ca/real-estate/29230373/121-feairs-drive-southgate-southgate


KYLE DALLAIRE
Salesperson

(519) 323-0134
Royal LePage RCR Realty
165 Main St S
Mount Forest, Ontario N0G 2L0

(519) 323-4145
(519) 323-4173

Interested?

Contact us for more information


Generating Captcha

Your Favourites

 

No Favourites Found

 

Contact

9 Main St E, Markdale ON, N0C 1H0

Follow Us

Other Information

Terms & Conditions

Privacy Policy

Independently Owned and Operated. ®/™ trademarks owned by Century 21 Real Estate LLC used under license or authorized sub-license. © 2020 Century 21 Canada Limited Partnership © 2020 Century 21 Canada Limited Partnership

The trademarks MLS®, Multiple Listing Service® and the associated logos identify professional services rendered by REALTOR® members of CREA to effect the purchase, sale and lease of real estate as part of a cooperative selling system. The trademarks REALTOR ® , REALTORS ® and the REALTOR ® logo are controlled by The Canadian Real Estate Association (CREA) and identify real estate professionals who are members of CREA. Used under license. This listing content provided by REALTOR.ca has been licensed by REALTOR® members of The Canadian Real Estate Association. Not intended to solicit properties currently listed for sale or buyers under contract.

Century 21 Canada Limited Partnership currently has franchise opportunities available in select markets across Canada. The intent of this communication is for informational purposes only and is not intended to be a solicitation to anyone under contract with another real estate brokerage operation. This e-mail message contains confidential information intended only for the use of the individual or entity named above. Any unauthorized use or disclosure is strictly prohibited. If you have received this communication in error please immediately delete the e-mail and either notify the sender at the above e-mail address or by telephone.

© 2022 Website Design, Development, and Digital Marketing by The Umbrella Affect